Huis Rozemarijnstraat in Zaamslag


sinds 4-10-2025 18:49:55


prijs: € 1050
Locatie : Nijmegen  (Gelderland)
Website : Bezoek website

Kenmerken

Beschrijving

Via de hal met tegelvloer bereik je de kelderkast, meterkast, het toilet en de trap naar de verdieping. De ruime woonkamer (ca. 9,00 x 4,00 m) is voorzien van een tegelvloer, schouw met gasaansluiting en rolluiken.
De dichte keuken (ca. 6,90 x 2,50 m) beschikt over diverse inbouwapparatuur: koel-/vriescombinatie, oven, elektrische kookplaat, afzuigkap en close-in boiler.
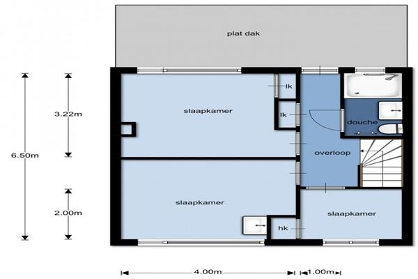
Hier bevinden zich drie slaapkamers met houten vloeren, deels voorzien van kunststof kozijnen en rolluiken:
Slaapkamer 1: ca. 3,28 x 4,00 m
Slaapkamer 2: ca. 2,00 x 2,50 m
Slaapkamer 3: ca. 3,22 x 4,00 m met vaste kast
De badkamer (ca. 3,00 x 1,50 m) is uitgerust met een douchecabine, wastafelmeubel met spiegelkast en sanibroyeur.
Via de overloop heb je toegang tot het dakterras aan de achterzijde.
Praktische bergzolder met combiketel (Intergas, 1995).
Een betonnen binnenplaats met stenen berging (ca. 2,50 x 3,00 m), voorzien van elektra, wasmachineaansluiting.
Woning rondom voorzien van rolluiken (m.u.v. keuken), kunststof kozijnen (2011)
Kenmerken: Kopen in Nijmegen



Klik hier en bezoek de website voor meer informatie
Advertentienummer: 120017335 Meld aan Aanbodpagina