Huis Merelstraat in Groningen


sinds 27-2-2026 18:51:28


prijs: € 1760
Locatie : Nijmegen  (Gelderland)
Website : Bezoek website

Kenmerken

Beschrijving

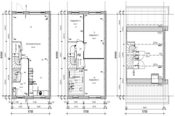
Indeling:
Binnenkomst via de entree met meterkast en toilet. De lichte woonkamer met trapkast staat in open verbinding met de moderne keuken en biedt toegang tot de zonnige achtertuin.
Overloop, drie volwaardige slaapkamers en een moderne badkamer met inloopdouche, wandcloset en dubbele wastafel.
Tweede verdieping (vaste trap)
Ruime bergzolder met dakkapel, technische installaties en aansluitingen voor wasapparatuur.
Kenmerken: Kopen in Nijmegen



Klik hier en bezoek de website voor meer informatie
Advertentienummer: 120333964 Meld aan Aanbodpagina