Huis Ivoorwit in Zoetermeer


sinds 23-2-2026 18:53:10


prijs: € 1580
Locatie : Nijmegen  (Gelderland)
Website : Bezoek website

Kenmerken

Beschrijving

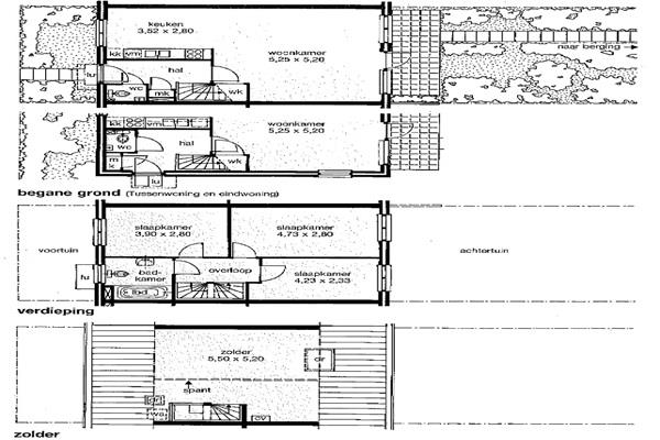
De woningen aan Glanswit, Hagelwit en Ivoorwit bieden veel leefruimte. De benedenverdieping van 37 m² bestaat uit een lichte woonkamer met halfopen keuken en een praktische provisiekast onder de trap. De eerste verdieping beschikt over drie slaapkamers en een recent gerenoveerde badkamer met ligbad, wastafel en tweede toilet. Daarnaast is er een ruime, multifunctionele zolder van ruim 28 m² beschikbaar.
De drie slaapkamers zijn goed bemeten en geschikt voor gezinnen. De badkamer is modern en compleet met ligbad, wastafel en tweede toilet, waardoor comfort en functionaliteit hand in hand gaan.
Elke woning heeft een voortuin en een achtertuin met praktische berging voor fietsen of gereedschap. Het biedt zowel buitenruimte als extra opslagmogelijkheden.
Elke woning heeft een voortuin en een achtertuin met praktische berging voor fietsen of gereedschap. Het biedt zowel buitenruimte als extra opslagmogelijkheden.
Kenmerken: Kopen in Nijmegen



Klik hier en bezoek de website voor meer informatie
Advertentienummer: 120319277 Meld aan Aanbodpagina