Huis Friesestraatweg in Groningen


sinds 10-2-2026 18:50:24


prijs: € 1791
Locatie : Nijmegen  (Gelderland)
Website : Bezoek website

Kenmerken

Beschrijving

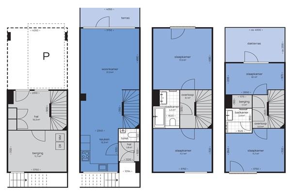
Deze eengezinswoning (hoek) heeft een woonoppervlakte van 136 m². Op de begane grond bevindt zich uw eigen overdekte parkeerplaats, entree met trapopgang en ruime berging. Via de trapopgang komt u in de riante woonkamer met balkon met open keuken. Met de bakoven of de inductiekookplaat zet u de heerlijkste gerechten op tafel. Op de tweede verdieping bevinden zich twee ruime slaapkamers en een badkamer voorzien van ligbad, wastafel en toilet. Op de derde verdieping zijn de overige twee slaapkamers, een tweede badkamer voorzien van inloopdouche en wastafel, een berging en een dakterras. Het balkon en dakterras zijn georiënteerd op het zonnige zuidwesten.
Kenmerken: Kopen in Nijmegen



Klik hier en bezoek de website voor meer informatie
Advertentienummer: 120277511 Meld aan Aanbodpagina