Huis Antillenweg in Almere


sinds 8-11-2025 12:48:33


prijs: € 2350
Locatie : Nijmegen  (Gelderland)
Website : Bezoek website

Kenmerken

Beschrijving

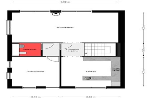
Indeling:
Entree, gang, trappenhuis en een inpandige berging aan de voorzijde, voorzien van een eigen toegangsdeur. Tevens is er een royale, overdekte carport die voldoende ruimte biedt voor het parkeren van een boot op trailer, een auto, caravan of camper. Aan de achterzijde bevindt zich een werkkamer of praktijkruimte, compleet met een eigen ingang. Deze ruimte grenst direct aan de steiger en is bijzonder door de indrukwekkende plafondhoogte van 3,44 meter, doordat het lager gelegen is dan de rest van de woning.
Grenzend aan de werkkamer is een overdekt terras, uitgerust met glazen windschermen en elektrische terrasverwarming, wat ervoor zorgt dat u het hele jaar door comfortabel buiten kunt zitten. Het terras biedt een schitterend uitzicht over het water en geeft toegang tot de steiger, zowel aan de achterzijde als zijkant van de woning. Hier heeft u een eigen aanlegplaats voor een boot, waarmee u gemakkelijk kunt genieten van vaartochten in de omgeving van Almere en de Randmeren. De ruime steiger van meer dan 30 m² biedt volop gelegenheid om te ontspannen en te genieten van het uitzicht op het water en de omliggende natuur.
Op de eerste verdieping bevindt zich de woonruimte met een ruime woonkamer, die dankzij grote raampartijen een prachtig uitzicht biedt over het water. Deze ramen kunnen volledig worden geopend, waardoor de ruimte extra licht en open aanvoelt. De woonkamer is afgewerkt met een massieve eikenhouten vloer en uitgerust met een houtkachel, die zowel voor warmte als een aangename sfeer zorgt. Aan de voorzijde van de woning bevindt zich een ruime eetkeuken, praktisch ingericht met een halfronde opstelling. De keuken is voorzien van alle benodigde apparatuur, waaronder een inductiekookplaat, afzuigkap, vaatwasser, combi-oven, ladekoelkast en een aparte vriezer. Vanuit de tussenhal heeft u toegang tot een ruim toilet met wastafel en een royale slaapkamer, welke is afgewerkt met een grindvloer.
Op de tweede verdieping bevindt zich een lichte overloop, goed verlicht door een lichtkoepel boven de trap en openslaande deuren. Daarnaast vindt u op deze verdieping een technische ruimte met aansluitingen voor wasmachine en droger, en de opstelling van de cv-ketel. Verder is er een ruime slaapkamer met airconditioning en een grote inbouwkast. De badkamer is voorzien van een ligbad, een inloopdouche met regendouche, een wastafel en een toilet. Op deze verdieping bevindt zich tevens een ruim dakterras van 44,5 m². Het terras biedt een vrij uitzicht en is een uitstekende plek om te ontspannen.
De woning is uitgerust met domotica waardoor u de verlichting, het klimaat en de beveiliging centraal kunt regelen. Er is een uitgebreid alarmsysteem aanwezig, inclusief 8 camera’s.
Kenmerken: Kopen in Nijmegen



Klik hier en bezoek de website voor meer informatie
Advertentienummer: 120085265 Meld aan Aanbodpagina