Appartement Woubruggestraat in Amsterdam


sinds 10-1-2026 18:49:37


prijs: € 2300
Locatie : Nijmegen  (Gelderland)
Website : Bezoek website

Kenmerken

Beschrijving

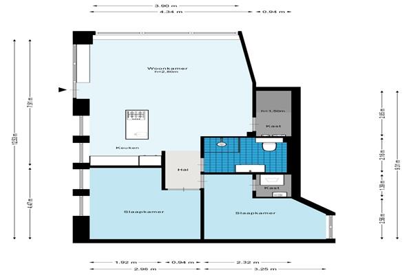
Indeling
De ruime woonkamer heeft dankzij de hoekligging en tevens grote raampartijen veel natuurlijk lichtinval.
De open keuken met kook-/ spoeleiland is voorzien van diverse inbouwapparatuur als een koelkast, vriezer, vaatwasser, oven en gasfornuis.
Aan de achterzijde bevinden zich de 2 slaapkamers. De strakke badkamer is voorzien van een inloopdouche, toilet en wastafel met meubel. Voor de wasmachine- /droogcombinatie is een apart washok.
Alle vertrekken zijn voorzien van een mooie hardhouten vloer.
Geschikt voor woningdelers, maximaal 2 personen;
Kenmerken: Kopen in Nijmegen



Klik hier en bezoek de website voor meer informatie
Advertentienummer: 120194281 Meld aan Aanbodpagina