Appartement Wamelplein in Amsterdam


sinds 1-4-2026 18:49:51


prijs: € 2300
Locatie : Nijmegen  (Gelderland)
Website : Bezoek website

Kenmerken

Beschrijving

HUREN MET GARANTSTELLNG NIET MOGELIJK!
Indeling:
Begane grond:
Op de begane grond bevindt zich de centrale entree met bellentableau en de brievenbussen. Vanuit de centrale hal kunt u met de trapopgang naar de verdiepingen. Op de begane grond bevindt zich een eigen privé berging. Voor het complex is voldoende en gratis parkeergelegenheid aanwezig.
Tweede verdieping:
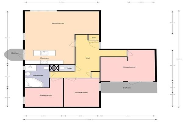
Middels de trap, komt u op de verdieping. U komt binnen in een zeer ruime hal die toegang geeft tot de woonkamer, de drie in grote variërende slaapkamers, een separaat toilet, een wasruimte en de riante badkamer. De ruime en lichte woonkamer met de open keuken bevindt zich op de hoek van het gebouw, waardoor u aan twee zijden ramen heeft. De gezellige open keuken voorzien van eiland met bar is voorzien van diverse inbouw apparatuur als: 5-pits gaskookplaat, RVS afzuigschouw, combi-magnetron, oven, vaatwasser, brede pannenlades en veel kastruimte. Aan de zijkant van de keuken, is er een klein balkon aanwezig. De riante ouderslaapkamer (ca. 17m2) grenst aan een zonnig balkon (6,8m2) op het zuidwesten. De andere twee slaapkamers (resp. 9,5 & 11,5 m2) vindt u aan de andere zijde van het appartement, naast de badkamer. De badkamer is ruim en voorzien van een riant ligbad, douchehoek met cabine, wastafel met wandmeubel, spiegelkast, een wandkast en een tweede toilet. De badkamer is keurig betegeld in een lichte kleurstelling tot aan het plafond en voorzien van een uitzetraam. Het separate toilet is zwevend, netjes betegeld en voorzien van een fonteintje. In de hal bevindt zich de CV-kast en een inpandige berging voorzien van de wasmachine.
Kenmerken: Kopen in Nijmegen



Klik hier en bezoek de website voor meer informatie
Advertentienummer: 120450478 Meld aan Aanbodpagina