Appartement Wagnersingel in Groningen


sinds 4-2-2026 18:49:08


prijs: € 2200
Locatie : Nijmegen  (Gelderland)
Website : Bezoek website

Kenmerken

Beschrijving

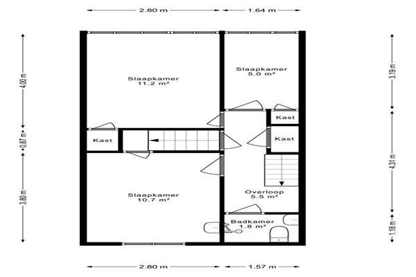
De woonkamer/eetkamer heeft een oppervlakte van 26,6m2. Tevens verleent de woonkamer toegang tot een klein balkon. Op de eerste verdieping zijn er twee slaapkamers met een oppervlakte van ca. 10,7m2 en 11,2m2. Ook is er een werk/studeerkamer met een oppervlakte van ca. 5m2. Het appartement beschikt ook over een zeer ruime zolderverdieping. De totale oppervlakte van het appartement is 97m2.
Niet geschikt voor studenten
Kenmerken: Kopen in Nijmegen



Klik hier en bezoek de website voor meer informatie
Advertentienummer: 120254974 Meld aan Aanbodpagina