Appartement Verdiweg in Amersfoort


sinds 26-3-2026 18:50:38


prijs: € 1600
Locatie : Nijmegen  (Gelderland)
Website : Bezoek website

Kenmerken

Beschrijving

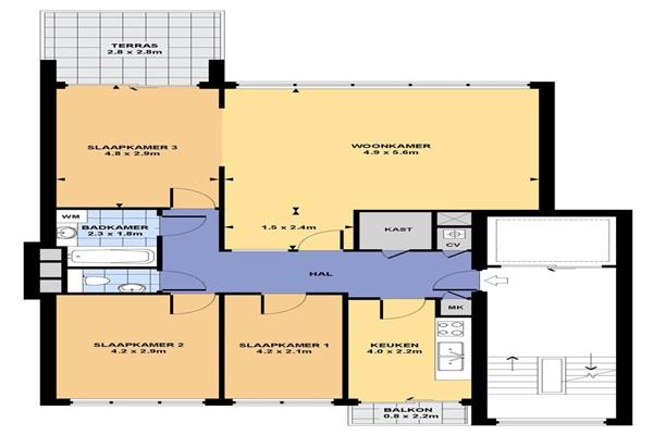
De indeling is als volgt:
centrale ingang met intercom en brievenbussen op de begane grond. Via de lift of het trappenhuis is het appartement op de zevende verdieping te bereiken.
Entree in ruime hal met vaste kast voor bijvoorbeeld garderobe en kast met CV-opstelling. Zeer lichte woonkamer. Aan de woonkamer grenst de extra kamer, die vaak gebruikt wordt als eetkamer of studeerkamer, maar die ook als slaapkamer gebruikt kan worden. Deze kamer geeft toegang tot het ruime balkon op het zuidoosten. Aan de centrale hal grenzen ook de beide slaapkamers en de badkamer. Die is netjes ingericht met een bad, wastafel en wasmachineaansluiting. Het toilet (met fontein) is separaat en al net zo netjes. De keuken tenslotte ligt aan de voorkant van het gebouw. Het is fijn om tijdens het koken de schuifpui in de keuken naar het kleine balkon aan de voorkant open te kunnen zetten.
Natuurlijk hoort er bij het huis een berging in de onderbouw, geschikt voor meerdere fietsen en de andere gebruikelijke spullen. Het parkeerterrein bij het gebouw is groot genoeg voor alle bewoners, dus geen gezoek naar een plekje!
Geen woningdelers, vrienden of studenten;
Kenmerken: Kopen in Nijmegen



Klik hier en bezoek de website voor meer informatie
Advertentienummer: 120428203 Meld aan Aanbodpagina