Appartement Troostlaan in Alkmaar


sinds 29-10-2025 19:08:52


prijs: € 1250
Locatie : Nijmegen  (Gelderland)
Website : Bezoek website

Kenmerken

Beschrijving

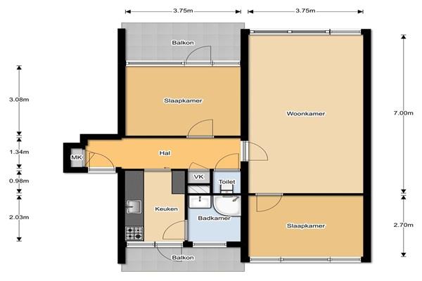
Indeling:
Centrale, afgesloten entree met brievenbussen, intercominstallatie, trappenhuis en een privéberging (ca. 5 m²).
Entree, ruime hal (ca. 6,5 m²) met toegang tot de meterkast, cv-kast en hangend toilet. De dichte keuken (ca. 6 m²) is voorzien van een compleet keukenblok met inbouwapparatuur: koel-/vriescombinatie, combi-oven/magnetron, 4-pits gaskookplaat met wokbrander, afzuigkap en vaatwasser. Vanuit de keuken heeft u toegang tot het balkon aan de voorzijde (ca. 5 m²), gelegen op het noorden.
De moderne, volledig betegelde badkamer beschikt over een wastafelmeubel, douchecabine met thermostaatkraan en designradiator.
De eerste slaapkamer (ca. 11,5 m²) is voorzien van een wastafelmeubel en biedt toegang tot het tweede balkon (ca. 5 m²), gesitueerd op het zonnige zuidwesten.
De royale woonkamer (ca. 26 m²) is bijzonder licht dankzij de grote raampartijen met draai-/kiepramen. Vanuit de woonkamer bereikt u de tweede slaapkamer (ca. 10 m²), eveneens voorzien van een draai-/kiepraam.
Woningdelers niet toegestaan;
Kenmerken: Kopen in Nijmegen



Klik hier en bezoek de website voor meer informatie
Advertentienummer: 120061205 Meld aan Aanbodpagina