Appartement Sint Jansplein in Waalwijk


sinds 14-1-2026 18:49:51


prijs: € 1170
Locatie : Nijmegen  (Gelderland)
Website : Bezoek website

Kenmerken

Beschrijving

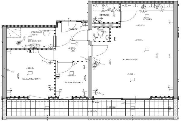
Indeling:
Centrale hal/ entree met bellentableau, brievenbussen, trappenhuis en liftinstallatie.
Ruime hal/ entree met toiletruimte en badkamer met douche en wastafel. Twee prima slaapkamers, beide met toegang tot het balkon. Woonkamer met videofoon en schuifpui naar het balkon (ca. 18 m2) welke op het zonnige zuiden is gesitueerd.
Open keuken met modern keukenblok voorzien van koelkast, combimagnetron, gaskookplaat, afzuigkap en vaatwasmachine. Bijkeuken met de opstelling van de cv-combiketel en aansluitmogelijkheid ten behoeve van de was apparatuur.
Kenmerken: Kopen in Nijmegen



Klik hier en bezoek de website voor meer informatie
Advertentienummer: 120200329 Meld aan Aanbodpagina