Appartement Sieversstraat in Heerenveen


sinds 4-10-2025 18:49:00


prijs: € 901
Locatie : Nijmegen  (Gelderland)
Website : Bezoek website

Kenmerken

Beschrijving

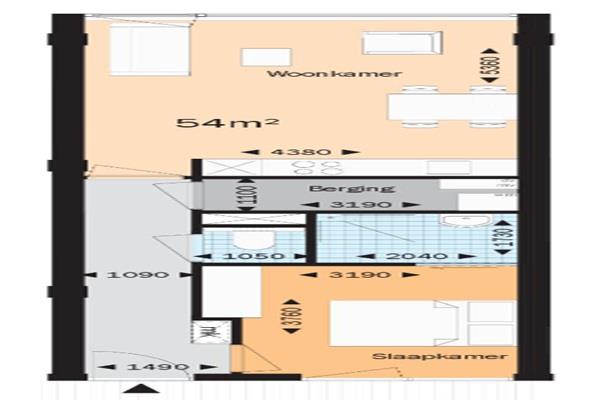
Indeling appartement: entree / gang met aan uw rechterzijde een ruime slaapkamer. Via de slaapkamer komt u in de badkamer. De badkamer is voorzien van een douche en wastafel. Separate toilet met zwevend toilet en fonteintje. Berging met aansluitpunt voor de wasmachine en droger. Woonkamer met open keuken. De keuken is voorzien van inbouwapparatuur met o.a. een keramische kookplaat, afzuigkap, vaatwasser, koelkast, vriezer en RVS combi-magnetron,
Het appartement is voorzien van een videofooninstallatie met een spreekluisterverbinding naar de entreedeur van het woongebouw.
Het appartement wordt niet verhuurd aan studenten.
Kenmerken: Kopen in Nijmegen



Klik hier en bezoek de website voor meer informatie
Advertentienummer: 120017186 Meld aan Aanbodpagina