Appartement Professor P.S. Gerbrandyweg in Den Haag


sinds 9-1-2026 18:48:44


prijs: € 2250
Locatie : Nijmegen  (Gelderland)
Website : Bezoek website

Kenmerken

Beschrijving

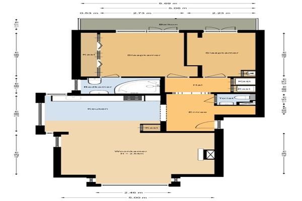
Indeling:
Begane grond met deurbelpaneel, trap naar de eerste verdieping, de hal geeft toegang tot alle kamers. De ruime woonkamer/ eetkamer met open haard heeft een adembenemend vrij uitzicht over het Westbroekpark met een aangrenzende keuken met alle gewenste apparatuur. In de hal bevindt zich een apart toilet, de master bedroom heeft een ruime inbouwkast en een doorgang naar de badkamer met toilet, bad en wastafel en een aangrenzend balkon aan de zeer groene rustige achterzijde gericht op het zuidwesten. De tweede slaapkamer heeft ook toegang tot het zonnige balkon. Op de zolder is er een extra werkkamer met sanitaire voorzieningen, en in de kelder is er een eigen ruime berging.
niet geschikt voor studenten of huisgenoten
Kenmerken: Kopen in Nijmegen



Klik hier en bezoek de website voor meer informatie
Advertentienummer: 120192731 Meld aan Aanbodpagina