Appartement Prinses Marijkestraat in Den Haag


sinds 3-1-2026 18:48:44


prijs: € 2187
Locatie : Nijmegen  (Gelderland)
Website : Bezoek website

Kenmerken

Beschrijving

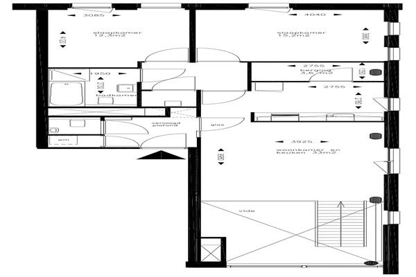
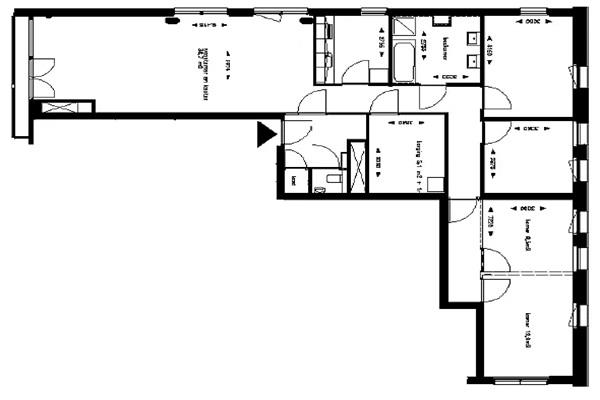
De plattegrond laat een royale woonkamer zien die dankzij de langgerekte vorm diverse opties biedt voor het creëren van een comfortabele zit- en eethoek. De grote raampartijen zorgen voor een prettige hoeveelheid daglicht, waardoor de ruimte open en uitnodigend aanvoelt. De woning is praktisch vormgegeven met een duidelijke scheiding tussen leef- en slaapgedeelten.
Aan de centrale hal grenzen meerdere kamers, waaronder slaapkamers die door hun rechte wanden makkelijk in te richten zijn. De woning heeft 2 inwendige bergingen. De keuken en badkamer bevinden zich eveneens centraal in de woning, waardoor de looplijnen efficiënt zijn en het geheel een rustige indeling behoudt. De aanwezigheid van voldoende kamers maakt de woning geschikt voor uiteenlopende woonwensen, zoals een thuiskantoor, hobbyruimte of logeerkamer.
Kenmerken: Kopen in Nijmegen



Klik hier en bezoek de website voor meer informatie
Advertentienummer: 120182609 Meld aan Aanbodpagina