Appartement President Kennedylaan in Den Haag


sinds 16-1-2026 18:49:11

prijs: € 1550
Locatie : Nijmegen  (Gelderland)
Website : Bezoek website

Kenmerken

Beschrijving

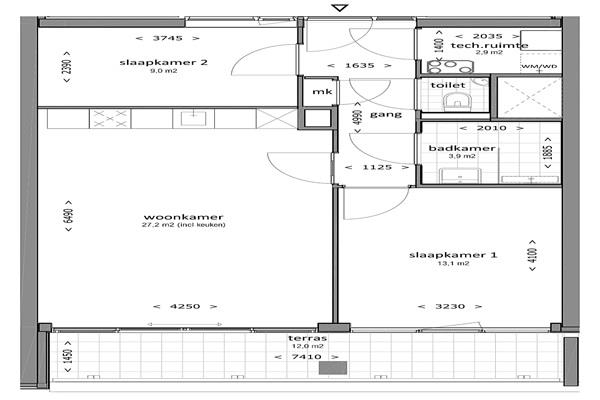
Woonkamer
De woonkamer is ruim en licht en geeft direct toegang tot het royale balkon van maar liefst 12 m². Een fijne plek om buiten te zitten en te genieten van de ruimte. De woning is voorzien van een mooie laminaatvloer, wat zorgt voor een warme en verzorgde uitstraling.
Keuken
Aan de woonkamer grenst de open keuken van Olympia Bruynzeel, uitgevoerd in wit en afgewerkt met een quartsiet Easy Miner aanrechtblad. De keuken is voorzien van moderne inbouwapparatuur, waaronder een inductiekookplaat, combimagnetron, vaatwasser en een koelkast met vriesvak. Praktisch en stijlvol tegelijk.
Slaapkamers
Het appartement beschikt over twee slaapkamers, geschikt als hoofd- en tweede slaapkamer of bijvoorbeeld als werk- of logeerkamer.
Badkamer
De badkamer is luxe uitgevoerd en voorzien van een inloopdouche en een wastafel. In de hal bevindt zich een separaat toilet en daarnaast een ruime, aparte wasruimte.
Comfort en parkeren
Het appartement is volledig voorzien van vloerverwarming, wat zorgt voor extra wooncomfort. Bij de woning hoort een verplichte parkeerplaats in de ondergrondse parkeergarage.

Meer informatie over deze woning? Klik op Bekijk woning om contact met de verhuurder te leggen. U wordt doorverwezen naar een externe bron.
Kenmerken: Kopen in Nijmegen



Klik hier en bezoek de website voor meer informatie
Advertentienummer: 120206867 Meld aan Aanbodpagina