Appartement President Kennedylaan in Den Haag


sinds 3-5-2026 06:01:09


prijs: € 1510
Locatie : Nijmegen  (Gelderland)
Website : Bezoek website

Kenmerken

Beschrijving

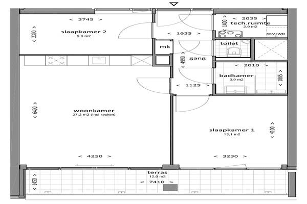
De ruime woonkamer biedt veel licht en directe toegang tot het balkon. De open indeling zorgt voor een prettige leefruimte waar je comfortabel kunt wonen en ontspannen.
Aansluitend aan de woonkamer ligt de luxe Olympia Bruynzeel-keuken in witte uitvoering met een quartsiet Easy Miner werkblad. De keuken is volledig uitgerust met een combimagnetron, inductiekookplaat, koelkast met vriesvak en vaatwasser.
Het appartement beschikt over twee slaapkamers die beide goed in te richten zijn als slaap-, werk- of logeerkamer.
De moderne badkamer is voorzien van een comfortabele inloopdouche en een wastafel. In de hal bevinden zich een separaat toilet en een ruime wasruimte.
Via de woonkamer bereik je het ruime balkon van 10 m², een heerlijke plek om buiten te zitten en te genieten van de omgeving.
Kenmerken: Kopen in Nijmegen



Klik hier en bezoek de website voor meer informatie
Advertentienummer: 120551554 Meld aan Aanbodpagina