Appartement President Kennedylaan in Den Haag


sinds 10-2-2026 12:48:33

prijs: € 1475
Locatie : Nijmegen  (Gelderland)
Website : Bezoek website

Kenmerken

Beschrijving

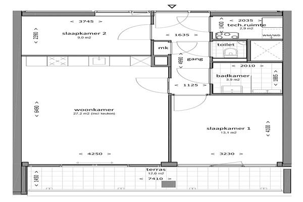
Woonkamer
De woonkamer is ruim, licht en vormt samen met de open keuken een prettige leefruimte. Dankzij de open opzet voelt het appartement groter aan en biedt het volop mogelijkheden om het naar eigen smaak in te richten.
Keuken
De open keuken is modern uitgevoerd en voorzien van alle benodigde inbouwapparatuur, waaronder een inductiekookplaat, combimagnetron, vaatwasser en koelkast met vriesvak. De praktische indeling en nette afwerking maken koken eenvoudig en aangenaam.
Slaapkamers
Het appartement beschikt over twee slaapkamers. De hoofdslaapkamer is ruim en comfortabel, terwijl de tweede slaapkamer ideaal is als werkplek, logeerkamer of kinderkamer. Beide kamers bieden voldoende daglicht en flexibiliteit in gebruik.
Badkamer
De badkamer is strak en luxe afgewerkt en voorzien van een inloopdouche, wastafel en toilet. Alles is verzorgd uitgevoerd voor een moderne en comfortabele uitstraling.
Terras en Comfort
Het appartement beschikt over een terras, een fijne plek om buiten te zitten en te genieten van frisse lucht. Daarnaast is de woning volledig voorzien van vloerverwarming, wat zorgt voor extra comfort in alle ruimtes..

Meer informatie over deze woning? Klik op Bekijk woning om contact met de verhuurder te leggen. U wordt doorverwezen naar een externe bron.
Kenmerken: Kopen in Nijmegen



Klik hier en bezoek de website voor meer informatie
Advertentienummer: 120275952 Meld aan Aanbodpagina