Appartement President Kennedylaan in Den Haag


sinds 3-1-2026 18:48:45


prijs: € 1650
Locatie : Nijmegen  (Gelderland)
Website : Bezoek website

Kenmerken

Beschrijving

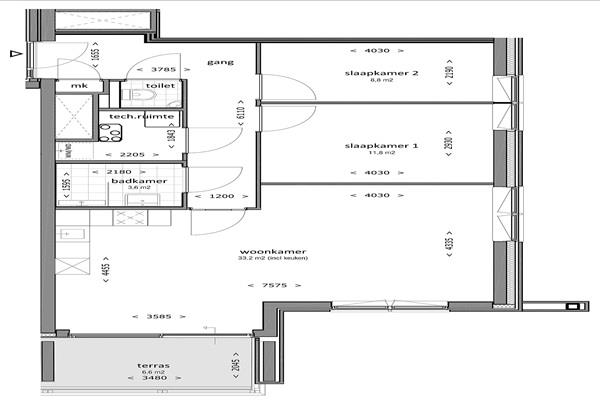
De woonkamer is ruim en licht en vormt samen met de open keuken een prettige leefruimte. Door de open opzet voelt het appartement ruim aan en is er volop plek om het naar eigen smaak in te richten.
De open keuken is modern uitgevoerd en voorzien van inbouwapparatuur, waaronder een inductiekookplaat, combimagnetron, vaatwasser en een koelkast met vriesvak. Praktisch ingedeeld en netjes afgewerkt.
Het appartement beschikt over twee slaapkamers. De hoofdslaapkamer is ruim en comfortabel, de tweede slaapkamer is perfect als werkplek, logeerkamer of kinderkamer.
De badkamer heeft een luxe uitstraling en is uitgerust met een inloopdouche, wastafel en toilet. Alles is strak en verzorgd afgewerkt.
Het appartement beschikt over een terras, een fijne plek om buiten te zitten. Daarnaast is de woning volledig voorzien van vloerverwarming, wat zorgt voor extra comfort in alle ruimtes.
In de ondergrondse parkeergarage zijn parkeerplaatsen te huur.
Kenmerken: Kopen in Nijmegen



Klik hier en bezoek de website voor meer informatie
Advertentienummer: 120182616 Meld aan Aanbodpagina