Appartement President Kennedylaan in Den Haag


sinds 14-3-2026 18:49:21


prijs: € 1380
Locatie : Nijmegen  (Gelderland)
Website : Bezoek website

Kenmerken

Beschrijving

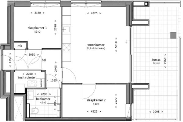
De woonkamer is licht en prettig ingedeeld en vormt samen met de open keuken een fijne leefruimte. Dankzij de open indeling voelt het appartement ruim aan en is er voldoende plek voor een gezellige zit- en eethoek.
De open keuken heeft een moderne uitstraling en is voorzien van diverse inbouwapparatuur, waaronder een inductiekookplaat, combimagnetron, vaatwasser en een koelkast met vriesvak. De keuken is praktisch ingericht en netjes afgewerkt.
Het appartement beschikt over twee slaapkamers. De hoofdslaapkamer biedt voldoende ruimte voor een comfortabel bed en kastruimte. De tweede kamer is ideaal als werkruimte, logeerkamer of bijvoorbeeld een kleine kinderkamer.
De badkamer is modern uitgevoerd en beschikt over een inloopdouche en wastafel. Daarnaast is er een separaat toilet in het appartement.
Het appartement heeft een eigen terras waar je rustig buiten kunt zitten. De woning is daarnaast volledig voorzien van vloerverwarming, wat zorgt voor een aangenaam en gelijkmatig comfort in alle ruimtes.
Kenmerken: Kopen in Nijmegen



Klik hier en bezoek de website voor meer informatie
Advertentienummer: 120387873 Meld aan Aanbodpagina