Appartement Poelgeeststraat in Leiden


sinds 17-2-2026 12:48:07


prijs: € 950
Locatie : Nijmegen  (Gelderland)
Website : Bezoek website

Kenmerken

Beschrijving

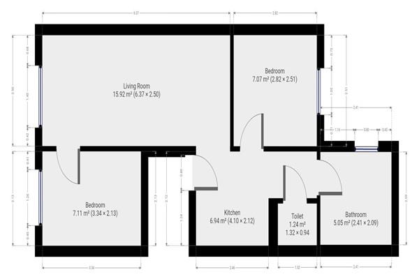
Bij binnenkomst betreed je direct de moderne, open keuken die naadloos overgaat in de lichte woonkamer. De keuken is volledig nieuw en uitgerust met hoogwaardige apparatuur zoals een koelkast, inductiekookplaat en afzuigkap. De woonkamer biedt een aangename, rechthoekige ruimte met hoge plafonds die zorgen voor een ruimtelijk gevoel. Dankzij de grote ramen is er volop natuurlijk licht en goede ventilatiemogelijkheden. Vanuit de woonkamer heb je toegang tot de eerste slaapkamer, die eveneens veel lichtinval geniet door de grote ramen.
Aan de achterzijde van het appartement vind je de tweede slaapkamer, ook voorzien van een groot raam voor voldoende daglicht.
De moderne badkamer, te bereiken via de keuken, is uitgerust met een ruime inloopdouche, wastafel en aansluitingen voor een wasmachine en droger. Daarnaast is er een separaat toilet.
Kenmerken: Kopen in Nijmegen



Klik hier en bezoek de website voor meer informatie
Advertentienummer: 120299521 Meld aan Aanbodpagina