Appartement Lucellestraat in Amsterdam


sinds 6-12-2025 18:50:38


prijs: € 2500
Locatie : Nijmegen  (Gelderland)
Website : Bezoek website

Kenmerken

Beschrijving

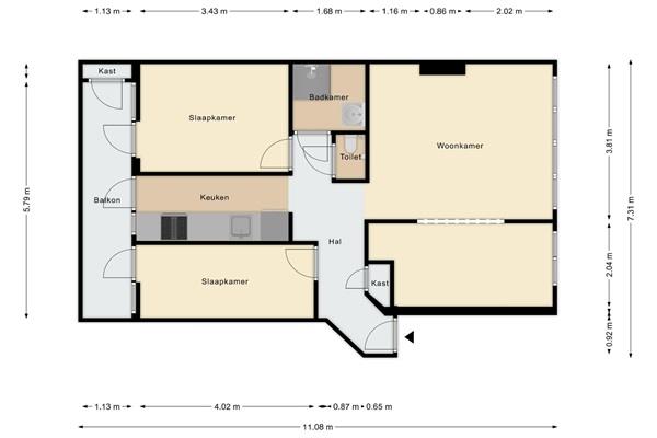
Indeling:
De gemeenschappelijke entree geeft toegang tot de voordeur van het appartement op de tweede verdieping. Het appartement heeft een zeer efficiënte indeling met een ruime en lichte woonkamer aan de voorzijde. De semi open keuken is gelegen aan de achterzijde van het appartement en beschikt over moderne inbouwapparatuur zoals vaatwasser, combi-oven, koelkast en vriezer.
De twee slaapkamers hebben beide toegang tot het zonnige balkon. Het balkon kijkt uit op een leuke en groene binnentuin. De moderne badkamer is voorzien van een inloopdouche, wastafel en ruimte voor een wasmachine en droger. Naast de badkamer bevindt zich het aparte toilet welke in dezelfde stijl is als de badkamer.
NIET GESCHIKT OM TE DELEN
Kenmerken: Kopen in Nijmegen



Klik hier en bezoek de website voor meer informatie
Advertentienummer: 120138436 Meld aan Aanbodpagina