Appartement Louis Pasteurstraat in Haarlem


sinds 16-1-2026 18:49:40


prijs: € 1163
Locatie : Nijmegen  (Gelderland)
Website : Bezoek website

Kenmerken

Beschrijving

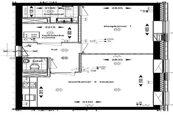
Welkom aan de Louis Pasteurstraat, een modern en comfortabel appartement met een slimme indeling en een aangename woonsfeer. Deze woning combineert eigentijdse afwerking met praktische leefruimtes, perfect voor wie waarde hecht aan rust, licht en gemak.
Bij binnenkomst kom je in een ruime hal die toegang biedt tot alle vertrekken. Direct aan de hal bevinden zich een toilet en een technische ruimte met aansluitingen voor wasmachine en droger.
De woonkamer met open keuken vormt het hart van de woning. Dankzij de grote ramen valt er veel natuurlijk licht binnen, wat zorgt voor een open en uitnodigende sfeer. De keuken is modern ingericht en biedt voldoende ruimte om prettig te koken en te genieten van gezellige etentjes.
De slaapkamer is ruim en rustig gelegen, ideaal als comfortabele privéruimte. De badkamer is modern afgewerkt en voorzien van een douche, wastafel en radiator.
De woning beschikt over een energiezuinig ventilatiesysteem met CO2-sensoren, wat zorgt voor een gezond en aangenaam binnenklimaat gedurende het hele jaar.
Kenmerken: Kopen in Nijmegen



Klik hier en bezoek de website voor meer informatie
Advertentienummer: 120207013 Meld aan Aanbodpagina