Appartement Langestraat in Winschoten


sinds 25-9-2025 18:49:20


prijs: € 1200
Locatie : Nijmegen  (Gelderland)
Website : Bezoek website

Kenmerken

Beschrijving

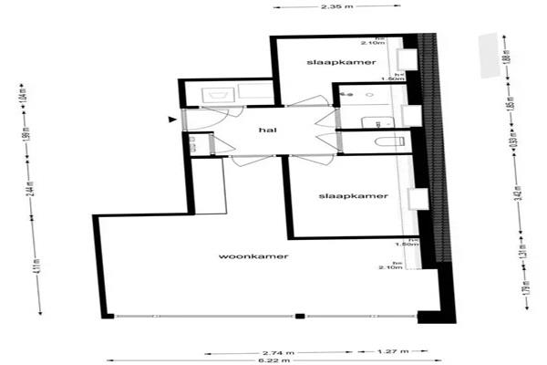
Indeling
Gelegen op de tweede verdieping, met uitzicht op de winkelstraat:
Hal met apart toilet, badkamer voorzien van douche en wastafel, eerste slaapkamer, tweede slaapkamer, woonkamer met open keuken.
De woning is niet geschikt voor studenten of woningdelers.
Kenmerken: Kopen in Nijmegen



Klik hier en bezoek de website voor meer informatie
Advertentienummer: 120001653 Meld aan Aanbodpagina