Appartement Laan door de Veste in Helmond


sinds 24-10-2025 18:49:11


prijs: € 1165
Locatie : Nijmegen  (Gelderland)
Website : Bezoek website

Kenmerken

Beschrijving

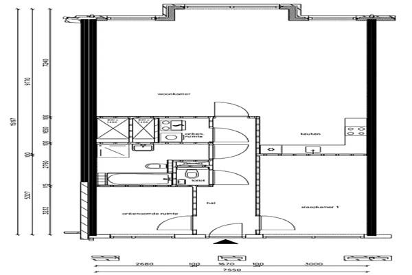
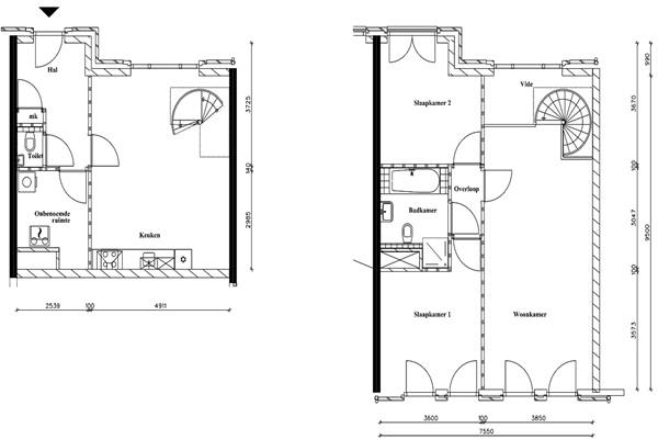
Dit fraaie appartement bevindt zich op de begane grond van het goed onderhouden complex aan de Laan door de Veste. Bij binnenkomst biedt de hal toegang tot de keuken, het toilet en de berging. Het toilet is voorzien van een modern wandcloset en een fontein. De keuken is netjes afgewerkt met een kunststof werkblad, een RVS spoelbak en een RVS afzuigkap, waardoor een functionele en verzorgde ruimte ontstaat. In de berging vind je de HR cv-combiketel, de warmte-terugwinunit en de aansluitingen voor wasmachine en droger, wat bijdraagt aan het gebruiksgemak.
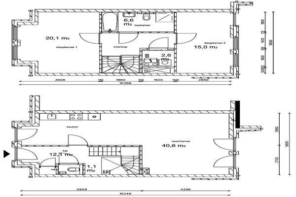
Een wenteltrap leidt naar de eerste verdieping, waar zich de woonkamer, twee slaapkamers en de badkamer bevinden. De woonkamer is royaal van opzet en staat in open verbinding met de vide, wat zorgt voor een luchtige en lichte sfeer. De badkamer is uitgerust met een ligbad, een aparte douche, een wandcloset en een wastafel, waarbij comfort en functionaliteit centraal staan. De voorzijde van het appartement herbergt de hoofdslaapkamer, voorzien van aansluitingen voor radio en televisie. De tweede slaapkamer is veelzijdig inzetbaar en leent zich uitstekend als werk- of speelkamer.
Bij het appartement hoort een eigen parkeerplaats op het afgesloten binnenterrein, evenals een berging op de begane grond die zich uitstekend leent voor het stallen van bijvoorbeeld fietsen.
Kenmerken: Kopen in Nijmegen



Klik hier en bezoek de website voor meer informatie
Advertentienummer: 120050360 Meld aan Aanbodpagina