Appartement Laan door de Veste in Helmond


sinds 28-1-2026 18:48:31

prijs: € 1160
Locatie : Nijmegen  (Gelderland)
Website : Bezoek website

Kenmerken

Beschrijving

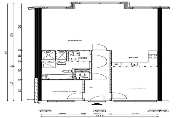
Via de hal heb je direct toegang tot de keuken, het moderne toilet en de inpandige berging. Het toilet is strak uitgevoerd met een wandcloset en fonteintje. De keuken is verzorgd en functioneel ingericht en voorzien van een kunststof werkblad, een roestvrijstalen spoelbak en een bijpassende afzuigkap. In de berging bevinden zich de HR cv-combiketel, de WTW-installatie en de aansluitingen voor wasmachine en droger, alles netjes en praktisch bij elkaar.
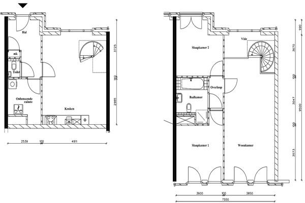
Een elegante wenteltrap brengt je naar de eerste verdieping. Hier bevinden zich de twee slaapkamers en de badkamer. De ruime woonkamer staat in open verbinding met de vide, wat zorgt voor een prettige lichtinval en een extra ruimtelijk gevoel. Een heerlijke plek om te ontspannen.
De badkamer is compleet uitgevoerd en beschikt over een ligbad, een aparte douche, een wandcloset en een wastafel. De eerste slaapkamer ligt aan de voorzijde van het appartement en is voorzien van radio- en tv-aansluitingen. De tweede slaapkamer is flexibel te gebruiken, bijvoorbeeld als extra slaapkamer, werkkamer of hobbyruimte.
Het appartement beschikt over een eigen parkeerplaats op het afgesloten binnenterrein van het complex. Daarnaast is er een separate berging op de begane grond, ideaal voor het stallen van fietsen of extra opslag.

Meer informatie over deze woning? Klik op Bekijk woning om contact met de verhuurder te leggen. U wordt doorverwezen naar een externe bron.
Kenmerken: Kopen in Nijmegen



Klik hier en bezoek de website voor meer informatie
Advertentienummer: 120244811 Meld aan Aanbodpagina