Appartement Kolonel Millerstraat in Maastricht


sinds 8-10-2025 18:49:24


prijs: € 1023
Locatie : Nijmegen  (Gelderland)
Website : Bezoek website

Kenmerken

Beschrijving

Dit appartement is gelegen in een modern woongebouw bestaande uit 38 appartementen, voorzien van alle comfort en met duurzaamheidstoepassingen die klaar zijn voor de toekomst. De Groene Loper is hét woongebouw van Zuid en kenmerkt zich door hoogwaardige architectuur en duurzame oplossingen voor het wonen van de toekomst.
Op deze centraal gelegen groene locatie bent u nabij alle uitvalswegen en op fietsafstand van het sfeervolle stadscentrum van Maastricht. Het appartementengebouw is gelegen aan de Kolonel Millerstraat en maakte deel uit van fase 2c van de Groene Loper.
Met de toepassing van een duurzaam ontwerp en installaties zoals warmtepompen en zonnepanelen is ook bij deze appartementen aan de Groene Loper volop ingezet op duurzaamheid.
Appartement
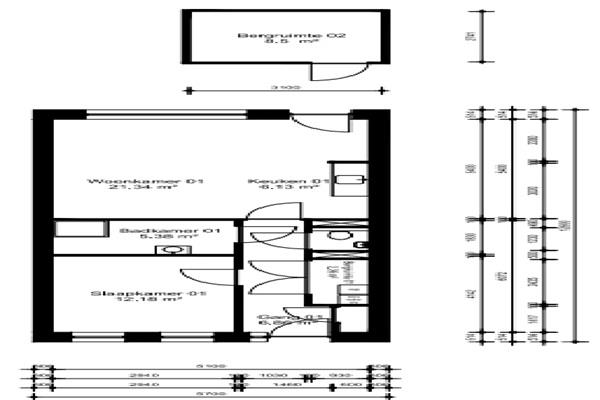
Dit fraaie appartement beschikt over een woonkamer met open keuken, 1 slaapkamer, een badkamer en een apart toilet in de hal.
Leuk en modern appartement
1 slaapkamer
Balkon
Kenmerken: Kopen in Nijmegen



Klik hier en bezoek de website voor meer informatie
Advertentienummer: 120022443 Meld aan Aanbodpagina