Appartement Klaverveld in Den Haag


sinds 3-1-2026 18:48:44


prijs: € 1457
Locatie : Nijmegen  (Gelderland)
Website : Bezoek website

Kenmerken

Beschrijving

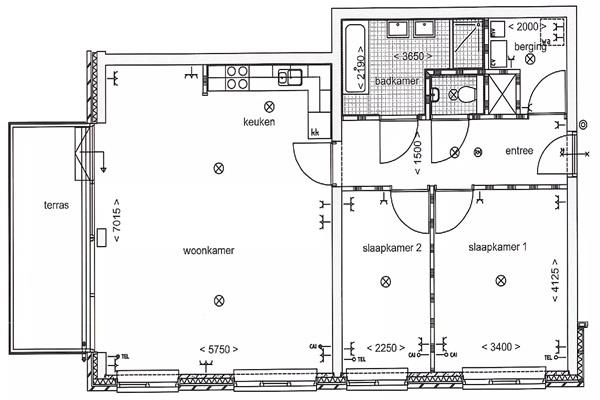
De woonkamer vormt samen met de luxe open keuken het hart van de woning. De keuken is stijlvol uitgevoerd en van alle gemakken voorzien, ideaal voor dagelijks gebruik en gezellig samen koken. Vanuit de woonkamer is er directe toegang tot het op het noordoosten gelegen terras van circa 10 m², een fijne plek om buiten te zitten en te ontspannen.
Het appartement beschikt over twee goed bemeten slaapkamers, die flexibel te gebruiken zijn als slaap-, werk- of logeerkamer. De badkamer is compleet uitgevoerd met een ligbad, een ruime douche en een dubbele wastafel, wat zorgt voor comfort en gemak. Daarnaast is er een praktische indeling met voldoende bergruimte in de woning.
Tot slot beschikt het appartement over een eigen berging en een vaste parkeerplaats. De ligging is gunstig ten opzichte van winkels, openbaar vervoer, groenvoorzieningen en uitvalswegen. Een comfortabele en complete woning in een prettige woonomgeving, ideaal voor wie op zoek is naar modern en zorgeloos wonen in Den Haag.
Kenmerken: Kopen in Nijmegen



Klik hier en bezoek de website voor meer informatie
Advertentienummer: 120182611 Meld aan Aanbodpagina