Appartement Jonker Fransstraat in Rotterdam


sinds 16-4-2026 18:48:33

prijs: € 1695
Locatie : Nijmegen  (Gelderland)
Website : Bezoek website

Kenmerken

Beschrijving

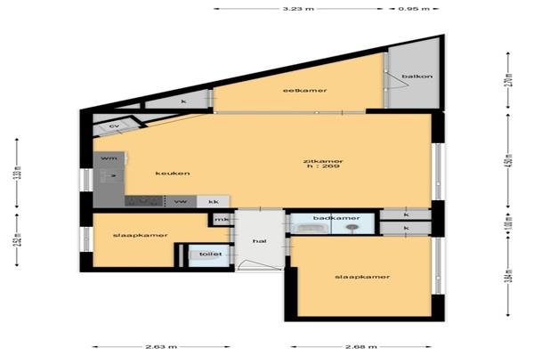
Indeling
BEGANE GROND:
Gesloten portiek met bellentableau en brievenbussen.
Via het trappenhuis is er toegang tot alle verdiepingen.
In de onderbouw is een afgesloten berging, toegankelijk via de achterzijde van het complex.
EERSTE VERDIEPING:
Eigen entree, hal die toegang biedt tot alle vertrekken en een separaat toilet.
Lichte woonkamer met open keuken en toegang tot de werk-/studeerruimte.
Vanuit dit vertrek is er toegang tot het balkon, gelegen op het oosten.
De moderne keuken is onder andere voorzien van inductie kookplaat, combi oven, vaatwasser en een koelkast met vriesvak.
Badkamer is voorzien van een douche, wastafelmeubel met spiegel en een designradiator.
De hoofdslaapkamer ligt aan de straatzijde. De andere slaap-/ kleedkamer ligt aan de achterzijde van de woning.

Meer informatie over deze woning? Klik op Bekijk woning om contact met de verhuurder te leggen. U wordt doorverwezen naar een externe bron.
Kenmerken: Kopen in Nijmegen



Klik hier en bezoek de website voor meer informatie
Advertentienummer: 120503670 Meld aan Aanbodpagina