Appartement Hoola van Nootenstraat in Utrecht


sinds 6-12-2025 18:50:44


prijs: € 1551
Locatie : Nijmegen  (Gelderland)
Website : Bezoek website

Kenmerken

Beschrijving

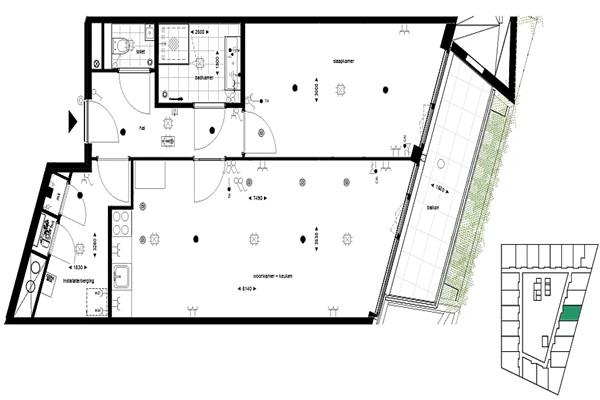
Bij binnenkomst in dit moderne appartement ervaar je direct een gevoel van overzicht en rust. De entree geeft toegang tot een centrale hal die alle ruimtes met elkaar verbindt, waardoor de woning logisch en prettig in gebruik is.
De royale woonkamer strekt zich uit over de volledige lengte van het appartement. Dankzij de brede gevel en de schuine vorm van de ruimte valt het licht mooi binnen. Hierdoor ontstaat een open, uitnodigende leefruimte waar je gemakkelijk een ruime zithoek kunt combineren met een volwaardige eethoek.
Aan de voorzijde bevindt zich de open keuken, praktisch geplaatst in een hoekopstelling. Hierdoor blijft de rest van de woonkamer vrij en open, terwijl je toch alle ruimte hebt om te koken. De keuken grenst ook aan de installatieruimte/berging, ideaal voor wasmachine, droger en extra opslag.
De slaapkamer ligt aan de rustige zijde van het gebouw en voelt prettig beschut. Er is meer dan genoeg plek voor een groot bed en kledingkasten. Vanuit de slaapkamer stap je direct het ruime balkon op—een groot pluspunt van dit appartement. De schuine gevel en royale breedte geven het balkon een bijzonder open en licht karakter. Het is een heerlijke buitenruimte waar je gemakkelijk een zithoek kunt creëren om te ontspannen of te genieten van de zon.
De badkamer bevindt zich centraal in de woning en is efficiënt ingedeeld, met een ruime douche en wastafel. Het toilet is apart toegankelijk vanuit de hal, wat zorgt voor extra comfort en privacy.
Dit appartement combineert een slimme indeling met veel natuurlijk licht en een geweldige buitenruimte—een fijne plek om thuis te komen in Utrecht.
Kenmerken: Kopen in Nijmegen



Klik hier en bezoek de website voor meer informatie
Advertentienummer: 120138454 Meld aan Aanbodpagina