Appartement Hoola van Nootenstraat in Utrecht


sinds 6-12-2025 18:50:44


prijs: € 2250
Locatie : Nijmegen  (Gelderland)
Website : Bezoek website

Kenmerken

Beschrijving

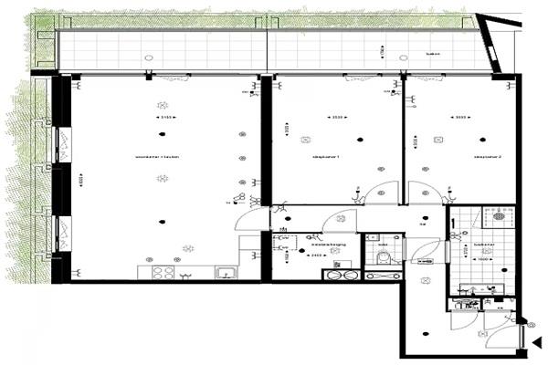
De entree vormt het hart van het appartement en verbindt alle vertrekken op natuurlijke wijze met elkaar. Direct naast de hal liggen een praktische berging en een aparte wasruimte – ideaal om het huis altijd opgeruimd te houden. De badkamer is royaal en luxe uitgevoerd, met zowel een inloopdouche als een ligbad, plus een dubbele wastafel die het geheel een hotelachtige sfeer geeft. Het toilet bevindt zich apart, wel zo comfortabel.
Via de hal bereik je twee mooi bemeten slaapkamers. De eerste slaapkamer is perfect als rustige master met plek voor een groot bed en extra kastruimte. De tweede slaapkamer is flexibel in te richten: logeerkamer, thuiswerkplek, hobbyruimte – alles kan, dankzij de rechte wanden en prettige lichtval.
De woonkamer en keuken vormen samen een royale leefruimte waar licht van meerdere kanten binnenkomt. De open keuken is stijlvol en volledig uitgerust, perfect voor zowel snelle ontbijtjes als lange avonden koken met vrienden. Dankzij de open indeling blijf je altijd in contact met wat er in de woonkamer gebeurt.
En dan het buitenleven: via de brede schuifpui stap je zo de riante buitenruimte op. Groot genoeg voor een eettafel, loungestoelen en planten – een rustige plek om te ontbijten in de zon of ’s avonds nog even na te genieten van de dag.
Dit is wonen met comfort, stijl en een vleugje natuur – precies zoals WonderWoods bedoeld is. Een plek om écht thuis te komen, midden in de stad, maar toch verrassend rustig en groen.
Kenmerken: Kopen in Nijmegen



Klik hier en bezoek de website voor meer informatie
Advertentienummer: 120138452 Meld aan Aanbodpagina