Appartement Hogewoerd in Leiden


sinds 27-9-2025 18:49:08


prijs: € 1450
Locatie : Nijmegen  (Gelderland)
Website : Bezoek website

Kenmerken

Beschrijving

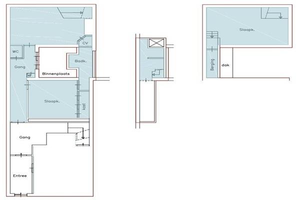
Indeling: gezamenlijke entree, entree appartement, hal met separaat toilet. Slaapkamer 1 (ca. 12 m²) met vaste kasten en toegang tot badkamer 1 voorzien van een douche, wastafel en wasmachineaansluiting. Ruime woonkamer met open keuken voorzien van een gasfornuis, afzuigkap, koelkast en vriezer. Trap naar slaapkamer 2 (ca. 23 m²) met voldoende bergruimte. Badkamer 2 op 1e etage voorzien van een douche, wastafel en een vaste kast. Het appartement heeft daarnaast ook een binnenplaats (ca. 8m²).
Kenmerken: Kopen in Nijmegen



Klik hier en bezoek de website voor meer informatie
Advertentienummer: 120004983 Meld aan Aanbodpagina