Appartement Herengracht in Leiden


sinds 16-1-2026 18:48:44


prijs: € 2250
Locatie : Nijmegen  (Gelderland)
Website : Bezoek website

Kenmerken

Beschrijving

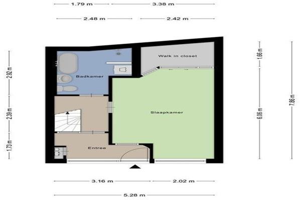
Entree op straat niveau, voor het huis staat een bankje om van het uitzicht te genieten. Tochtportaal, gang. De gang geeft toegang tot de slaapkamer, badkamer en klassieke steile trap. De slaapkamer is licht, ruime en heeft via en-suite deuren toegang tot de inloopkast.
De badkamer is uitgerust met douche, ligbad, wastafel, toilet en wasmachine. De gemakken van de moderne tijd, in een stijl die harmonieus samen gaat met het karakter van het pand.
Trap naar de eerste verdieping, de gang geeft toegang tot de woonkamer, de keuken en de trap naar de top verdieping. Lichte woonkamer met geweldig uitzicht op de gracht, in de zomer komen hier talloze bootjes voorbij varen, een heerlijke sfeer. Wanner je de fantasie even de ruimte geeft zie je zo een zeilschip van de VOC voorbij varen. De woonkamer loopt door in de ruime lichte keuken. De keuken is uitgerust met Koelkast, vriezer, vaatwasser, magnetron, oven gaskookplaat met afzuigkap en gootsteen.
Trap naar de topverdieping, hier is het beste uitzicht! Een lichte open woonkamer, werkkamer of slaapkamer met toegang tot het dakterras.
Kenmerken: Kopen in Nijmegen



Klik hier en bezoek de website voor meer informatie
Advertentienummer: 120206797 Meld aan Aanbodpagina