Appartement Generaal Spoorlaan in Rijswijk


sinds 17-12-2025 18:49:39

prijs: € 1092
Locatie : Nijmegen  (Gelderland)
Website : Bezoek website

Kenmerken

Beschrijving

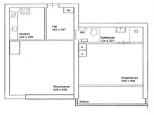
Het betreft een ruim vierkamerappartement van circa 100 vierkante meter. U komt binnen in de ruime hal welke toegang geeft tot alle vertrekken. Het appartement heeft een ruime woonkamer van circa 35 vierkante meter. Het appartement heeft drie slaapkamers. De grootste slaapkamer heeft een oppervlakte van circa 18 m2. De andere slaapkamer grenst aan de woonkamer van circa 13 m2 en de derde slaapkamer van circa 6 m2 heeft toegang tot het balkon.
Het appartement beschikt over een gesloten keuken zonder inbouwapparatuur. Vanuit de keuken is ook het balkon te bereiken. Tevens beschikt het appartement over een badkamer met douche en wastafel en een separaat toilet.

Meer informatie over deze woning? Klik op Bekijk woning om contact met de verhuurder te leggen. U wordt doorverwezen naar een externe bron.
Kenmerken: Kopen in Nijmegen



Klik hier en bezoek de website voor meer informatie
Advertentienummer: 120159633 Meld aan Aanbodpagina