Appartement Generaal Spoorlaan in Rijswijk


sinds 28-1-2026 18:49:23


prijs: € 610
Locatie : Nijmegen  (Gelderland)
Website : Bezoek website

Kenmerken

Beschrijving

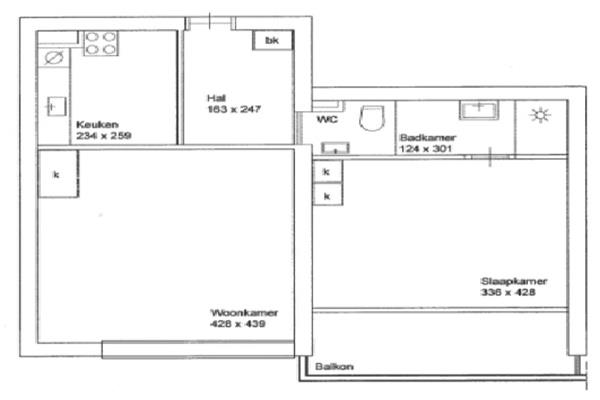
Het appartement beschikt over een woonkamer met en suite slaapkamer. Vanuit de slaapkamer is het balkon te bereiken. Via de woonkamer komt u in de gesloten nette keuken, de keuken is niet voorzien van inbouwapparatuur. Tevens is de badkamer via de slaapkamer bereikbaar, de badkamer is voorzien van een douche en wastafel. Het toilet is separaat.
Geen studenten
Kenmerken: Kopen in Nijmegen



Klik hier en bezoek de website voor meer informatie
Advertentienummer: 120245056 Meld aan Aanbodpagina