Al 23 jaar de grootste gratis online marktplaats!
Berichten
Account
+
Plaats advertentie
Alle rubrieken
Agrarisch
Antiek en Kunst
Audio, TV en Foto
Auto's
Auto-onderdelen
Auto diversen
Boeken
Beauty en Gezondheid
Bedrijfspanden
Caravans en Kamperen
Cd's en Dvd's
Computers en Software
Contacten en Berichten
Diensten en Vakmensen
Dieren en Toebehoren
Doe-het-zelf en Verbouw
Erotiek
Erotieklijnen
Fietsen en Brommers
Hobby en Vrije tijd
Huis en Inrichting
Huizen en Kamers
Kinderen en Baby's
Kleding | Dames
Kleding | Heren
Motoren
Muziek en Instrumenten
Paranormaal
Postzegels en Munten
Sieraden, Tassen en Uiterlijk
Spelcomputers, Games
Sport en Fitness
Telecommunicatie
Tickets en Kaartjes
Tuin en Terras
Vacatures
Vakantie
Verzamelen
Watersport en Boten
Witgoed en Apparatuur
Zakelijke goederen
Diversen
Alle afstanden...
< 5 km
< 10 km
< 15 km
< 25 km
< 50 km
< 75 km
< 100 km
< 150 km
Zoeken
Rubrieken
Huizen en Kamers
Te Koop
Appartementen en Flats
Bedrijfspanden
Bestaand Benelux
Bestaand Buiten Europa
Bestaand Europa
Eengezinswoningen
Garageboxen
Grondkavels
Half vrijstaand
Hoekwoningen
Kangoeroewoning
Kantoorruimte
Kavels Benelux
Kavels Buiten Europa
Kavels Europa
Kluswoningen
Landhuizen
Nieuw Benelux
Nieuw Buiten Europa
Nieuw Europa
Parkeerplaatsen
Recreatiewoningen
Starterswoningen
Studio's
Tussenwoningen
Vrijstaand
Woonboerderij
Te Huur
Appartementen en Flat's
Bedrijfspanden
Eengezinswoningen
Hoekwoningen
Kamers
Kantoorruimte
Starterswoningen
Studentenhuisvesting
Tussenwoningen
Twee onder een kap
Vrijstaand
Woningruil naar groter
Woningruil naar kleiner
Woningruil overig
Diensten | Koop
Hypotheekadviseurs
Interieuradviseurs
Makelaars
Overige | Te Huur
Recreatiewoningen
Woongemeenschap
Overige | Te Huur
Overige | Te Koop
Bouw projecten
Woonboten
Overige | Te Koop
Rubrieken
Rubrieken
×
Home
-
Huizen en Kamers
-
Overige | Te Huur
- Appartement Espoortstraat in Enschede
Je link hier plaatsen
Appartement Espoortstraat in Enschede
sinds
20-12-2025 12:48:07
Kopieer link
prijs: € 672
Locatie
:
Nijmegen
(Gelderland)
Website
:
Bezoek website
Kenmerken
Beschrijving
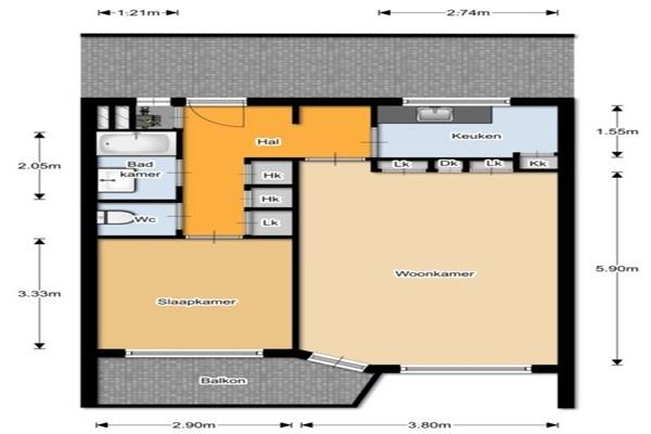
Indeling:
Woonkamer met toegang tot een balkon.
Keuken (gesloten of half open, afhankelijk van het type).
Badkamer met douche en apart toilet.
1 slaapkamer.
Berging.
Meer informatie over deze woning? Klik op Bekijk woning om contact met de verhuurder te leggen. U wordt doorverwezen naar een externe bron.
Kenmerken: Kopen in Nijmegen
Klik hier en bezoek de website voor meer informatie
Advertentienummer: 120163286
Meld aan Aanbodpagina