Appartement Eef Kamerbeekstraat in Amsterdam


sinds 15-1-2026 18:48:35


prijs: € 1832
Locatie : Nijmegen  (Gelderland)
Website : Bezoek website

Kenmerken

Beschrijving

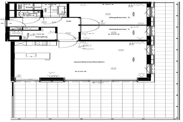
Deze woning is voorzien van een woonkamer met een open keuken en een kookeiland. Deze is voorzien van al het benodigde inbouwapparatuur zoals een oven, koelkast, inductiekookplaat, vaatwasser en afzuigkap.
Er bevinden zich aan de hal nog 2 slaapkamers, een prettige badkamer, een separaat toilet en extra berging met wasmachine en drogeraansluiting.
Deze woning is onderdeel van het appartementencomplex De BrouwerIJ. Het moderne appartementencomplex De BrouwerIJ heeft een hoog afwerkingsniveau. Het staat op het Zeeburgereiland met sportfaciliteiten, horeca en winkels om de hoek. Alle woningen zijn uitgerust met vloerverwarming, zonnepanelen en 500 m2 binnentuin exclusief voor bewoners van De BrouwerIJ. Wanneer je een kookliefhebber bent, kun je je hart ophalen in de keuken van jouw appartement in De BrouwerIJ.
Bij de huurprijs is een parkeerplaats inbegrepen. Deze is gelegen in de afgesloten parkeergarage onder het complex.
Kenmerken: Kopen in Nijmegen



Klik hier en bezoek de website voor meer informatie
Advertentienummer: 120202707 Meld aan Aanbodpagina