Appartement Donkweg in Venray


sinds 15-5-2026 15:50:30

prijs: € 1185
Locatie : Nijmegen  (Gelderland)
Website : Bezoek website

Kenmerken

Beschrijving

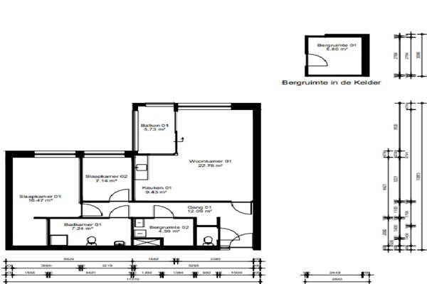
Dit appartement heeft 2 slaapkamers en een balkon. Het complex is gebouwd in 2015 en het appartement heeft een woonoppervlakte van 87 m2. Daarnaast zit er een eigen berging in het souterrain.

Meer informatie over deze woning? Klik op Bekijk woning om contact met de verhuurder te leggen. U wordt doorverwezen naar een externe bron.
Kenmerken: Kopen in Nijmegen



Klik hier en bezoek de website voor meer informatie
Advertentienummer: 120596491 Meld aan Aanbodpagina