Appartement Delflandplein in Amsterdam


sinds 18-2-2026 18:49:20


prijs: € 2200
Locatie : Nijmegen  (Gelderland)
Website : Bezoek website

Kenmerken

Beschrijving

Dit appartement is alleen te huur aan drie woningdelers!!!!! Niet meer en niet minder!!!!
Indeling:
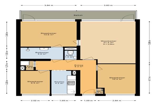
Via de afgesloten centrale hal kom je met de lift op de galerij. Via deze hal op de begane grond zijn ook de bergingen bereikbaar. Je komt binnen in de hal welke toegang geeft tot alle ruimtes. Er is een gezamenlijke woonkamer welke toegang geeft tot het balkon. Er zijn drie slaapkamers. De keuke is voorzien van inbouwapparatuur met een koel-vries combi, vaatwasser, gaskookplaat, afzuigkap en een combi-oven. De badkamer heeft een douche en wastafel. Het toilet is apart.
Kenmerken: Kopen in Nijmegen



Klik hier en bezoek de website voor meer informatie
Advertentienummer: 120303679 Meld aan Aanbodpagina