Appartement Deken van Somerenstraat in Eindhoven


sinds 15-4-2026 18:59:13


prijs: € 2495
Locatie : Nijmegen  (Gelderland)
Website : Bezoek website

Kenmerken

Beschrijving

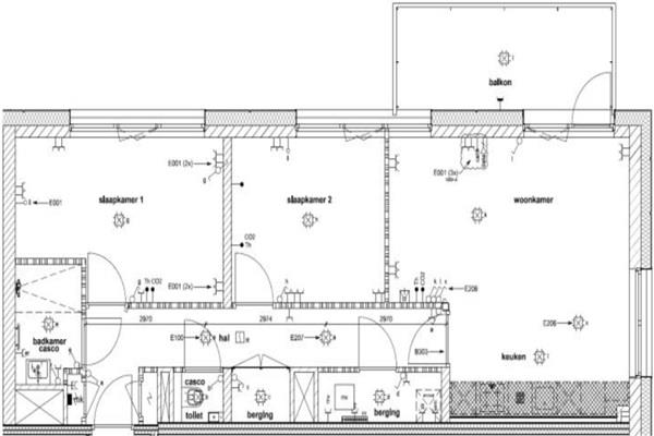
Het appartement is gelegen op de derde verdieping en beschikt over een praktische en moderne indeling. De lichte woonkamer vormt het hart van de woning en staat in open verbinding met de keuken, waardoor een aangename en ruimtelijke leefomgeving ontstaat. Dankzij de grote raampartijen profiteert het appartement van veel natuurlijk licht.
De woning beschikt over twee comfortabele slaapkamers. De moderne badkamer is strak afgewerkt en voorzien van hedendaags sanitair. Daarnaast beschikt het appartement over een separaat toilet en een praktische berging. Het appartement wordt volledig gemeubileerd verhuurd, en genieten van een zorgeloze woonervaring. Op het dak bevindt zich een gemeenschappelijk terras waar je gebruik van kan maken.
ideaal maakt voor zowel werkenden als expats.
Kenmerken: Kopen in Nijmegen



Klik hier en bezoek de website voor meer informatie
Advertentienummer: 120500501 Meld aan Aanbodpagina