Appartement De Hoge Kei in Weert


sinds 9-12-2025 18:50:06


prijs: € 1200
Locatie : Nijmegen  (Gelderland)
Website : Bezoek website

Kenmerken

Beschrijving

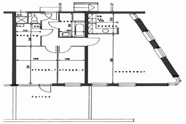
De indeling is als volgt:
Dit ruime appartement is gelegen op de tweede verdieping van het complex en kent een oppervlakte van circa 75m². Het appartement voorziet in een ruime woonkamer (37 m²), met aangrenzend gelegen de keuken in rechte opstelling. Het appartement met de loggia (8 m²) gelegen richting de Rabobank.
Het appartement is voorzien van twee slaapkamers met respectievelijke oppervlakten van ca. 12m² en 6,5m². De badkamer is gelegen direct aan de hal en is voorzien van ligbad en douche. Het toilet met fonteintje is separaat gelegen. Tot slot heeft u de beschikking over een ruime inpandige berging. Deze ruimte doet prima functie als provisie- c.q. bergruimte. In de kelder van het complex is eveneens een berging aanwezig voor bijvoorbeeld uw fiets.
Kenmerken: Kopen in Nijmegen



Klik hier en bezoek de website voor meer informatie
Advertentienummer: 120146204 Meld aan Aanbodpagina