Appartement Curaçaostraat in Amsterdam


sinds 16-1-2026 18:49:44


prijs: € 2950
Locatie : Nijmegen  (Gelderland)
Website : Bezoek website

Kenmerken

Beschrijving

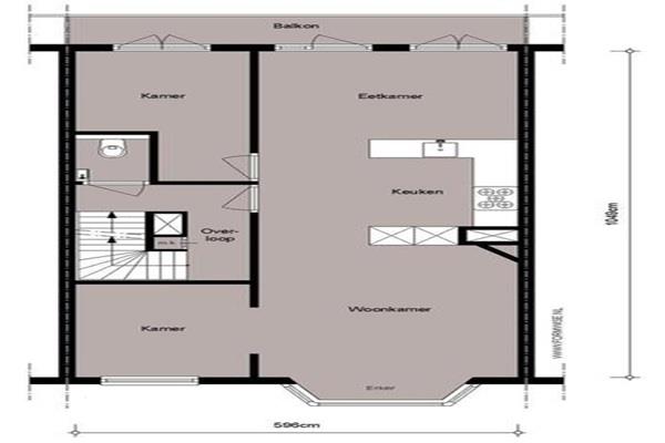
Indeling:
Ingang via gemeenschappelijke entree op de begane grond. Via de entree op de tweede verdieping komt u aan in de hal met trappenhuis. Op de derde verdieping bevindt zich de overloop met plek voor gaderobe en toilet. Via de overloop bereikt u de open keuken, voorzien van alle benodigde inbouwapparatuur. De eetkamer is gelegen aan de achterzijde, tezamen met een extra studeer/slaapkamer. Beide ruimtes hebben toegang tot een balkon over de gehele breedte van de woning. Aan de voorzijde van het appartement bevindt zich de gezellige woonkamer ensuite, met een sfeervol op maat gemaakt bankje in de erker.
Op de vierde verdieping bevinden zich de ‘master bedroom’ en nog een tweede slaapkamer. Hier is ook de recentelijk gerenoveerde badkamer, met dubbele wasbak, inloopdouche en bad. Verder is er op de overloop nog een inbouwkast met wasmachine- en drogeraansluiting. Op deze verdieping is ook het ruime terras van circa 13m² gelegen. Dankzij de vide en de vele raampartijen oogt de gehele woning erg licht.
Kenmerken: Kopen in Nijmegen



Klik hier en bezoek de website voor meer informatie
Advertentienummer: 120207054 Meld aan Aanbodpagina