Appartement Bisschopstraat in Oldenzaal


sinds 25-9-2025 18:49:21


prijs: € 1200
Locatie : Nijmegen  (Gelderland)
Website : Bezoek website

Kenmerken

Beschrijving

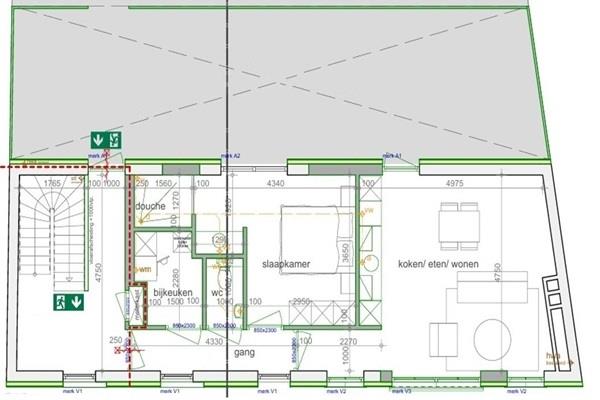
Indeling:
Begane grond: Entree/hal/gang staat in verbinding met de berging (aansluiting voor wasmachine en droger), separate toilet, slaapkamer met badkamer ensuite en woonkamer met keuken. De keuken is voorzien van diverse inbouwapparatuur zoals inductiekookplaat, afzuigkap, vaatwasser, oven en koel-vriescombinatie. De badkamer is uitgerust met inloopdouche, wastafel met meubel en vloerverwarming.
Kenmerken: Kopen in Nijmegen



Klik hier en bezoek de website voor meer informatie
Advertentienummer: 120001673 Meld aan Aanbodpagina