Appartement Bartholomeus Diazstraat in Amsterdam


sinds 25-4-2026 00:55:06


prijs: € 2250
Locatie : Nijmegen  (Gelderland)
Website : Bezoek website

Kenmerken

Beschrijving

Geschikt om te delen.
Indeling:
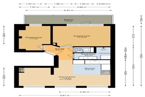
Je komt binnen via de hal die toegang tot alle andere ruimtes. De open keuken is net geplaatst en is voorzien van een vaatwasser, gas kookplaat, afzuigkap, combimagnetron en koel-vries combinatie. Aan de achterzijde zijn twee slaapkamers welke ook toegang hebben tot het balkon, welke gelegen is op het zuiden. Een slaapkamer is ongeveer11.4m2 en de tweede is ongeveer 7.1m2. Er is ruimte om een wasmachine te plaatsen. De badkamer is voorzien van een dubbele wastafel, douche en handdoekradiator. Het toilet is apart.
Geschikt voor maximaal twee delers;
Garantstellers worden niet geaccepteerd;
Kenmerken: Kopen in Nijmegen



Klik hier en bezoek de website voor meer informatie
Advertentienummer: 120534134 Meld aan Aanbodpagina