Appartement Apollolaan in Heerlen


sinds 5-12-2025 18:48:33

prijs: € 960
Locatie : Nijmegen  (Gelderland)
Website : Bezoek website

Kenmerken

Beschrijving

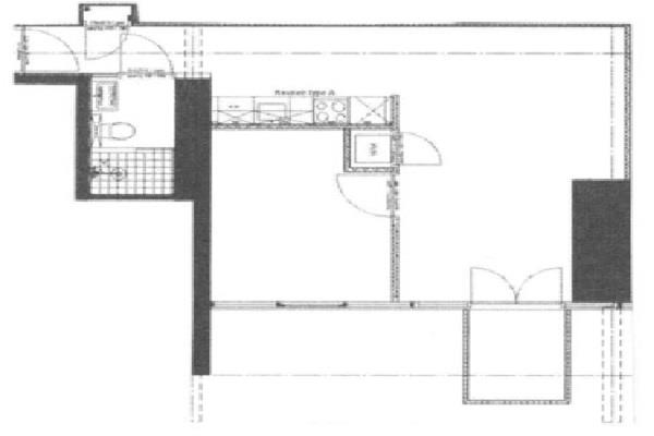
Dit appartement met twee slaapkamers ligt op de 2e verdieping. Het appartement is instapklaar, er is een mooie pvc vloerbekleding in een lichte kleur. De keuken is compleet met inbouwapparatuur zoals een vaatwasser, combi magnetron , koelkast, afzuigkap en spoelbak. Er is voldoende opbergruimte voor alle je eigen kookspullen.
De badkamer is volledig betegeld en voorzien van een wastafelmeubel, hangtoilet, inloopdouche en handdoekradiator. Er is een aparte berging met een aansluiting voor de wasmachine.
Er is een balkon aanwezig over de volle breedte van het appartement.

Meer informatie over deze woning? Klik op Bekijk woning om contact met de verhuurder te leggen. U wordt doorverwezen naar een externe bron.
Kenmerken: Kopen in Nijmegen



Klik hier en bezoek de website voor meer informatie
Advertentienummer: 120136124 Meld aan Aanbodpagina